Alvarez Thomas 1189

Propiedad Horizontal

2010

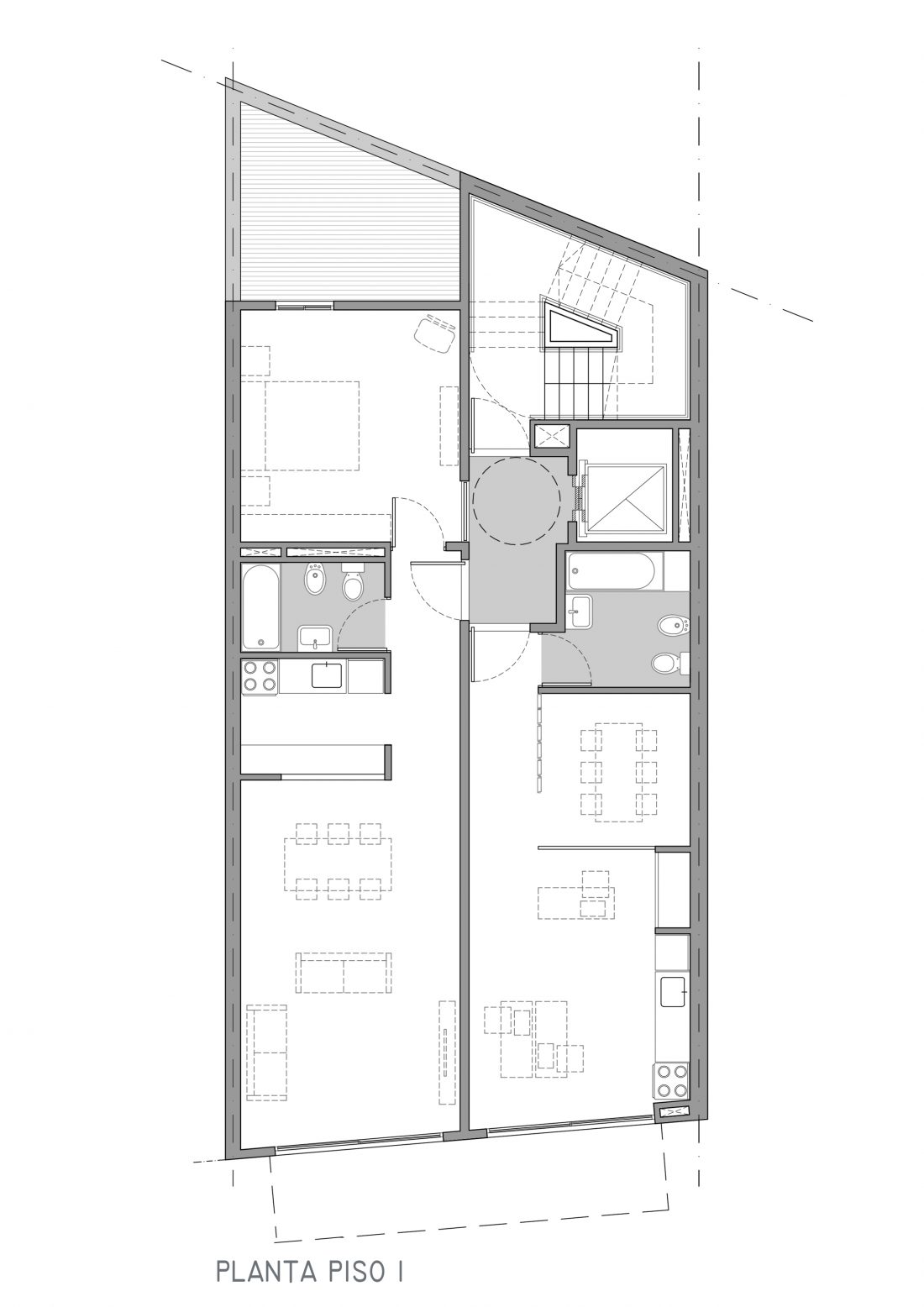
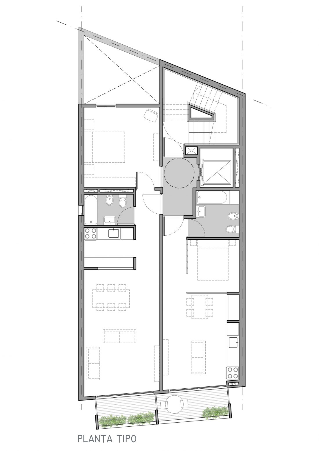
Alvarez Thomas 1189-91 es un edificio en Propiedad Horizontal de PB y 10 pisos ubicado en el Barrio de Colegiales en la Ciudad Autónoma de Buenos Aires. Se emplaza en un lote entre medianeras y esta organizado en un bloque, con unidades al frente.

Cuenta con 18 unidades, tipo monoambientes, dos ambientes y tres ambientes. En planta baja se aloja el hall de los acceso y un local comercial, y en la última planta, las zonas comunes y de esparcimiento.

Este proyecto explora las posibilidades técnicas y estéticas del hormigón armado a través de un ENTRAMADO DE PARASOLES, que sirven como sistema de asoleamiento, a la vez que contiene las expansiones de las unidades.

Este proyecto explora las posibilidades técnicas y estéticas del hormigón armado a través de un ENTRAMADO DE PARASOLES, que sirven como sistema de asoleamiento, a la vez que contiene las expansiones de las unidades.
Alvarez Thomas 1189 interior
Alvarez Thomas 1189 en proceso