Tres Arroyos 2771

Propiedad Horizontal

2015

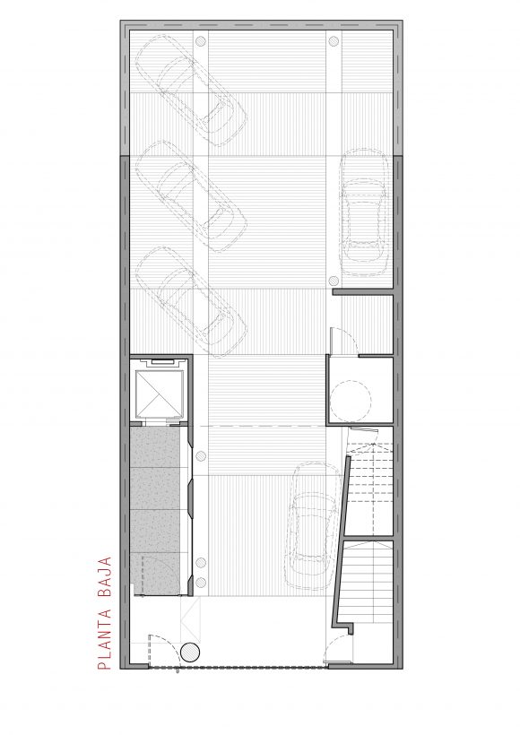
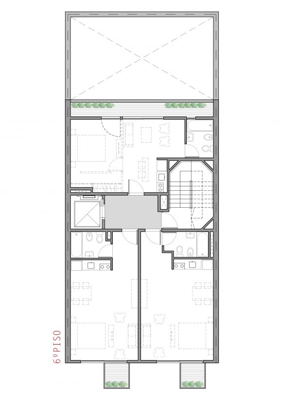
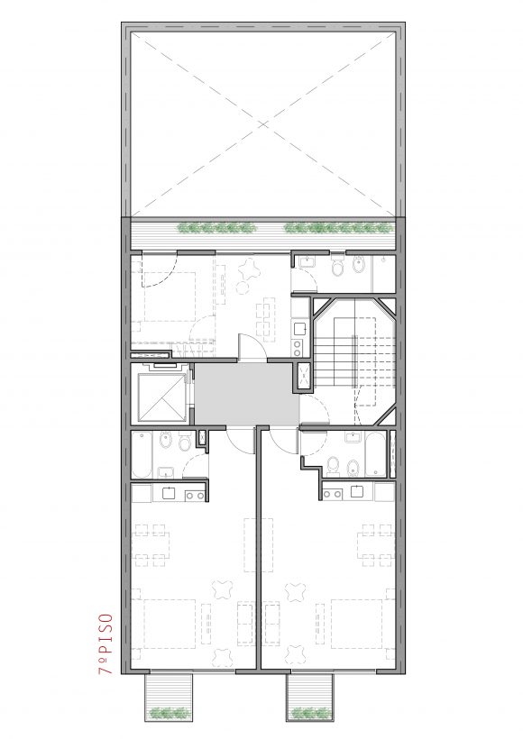
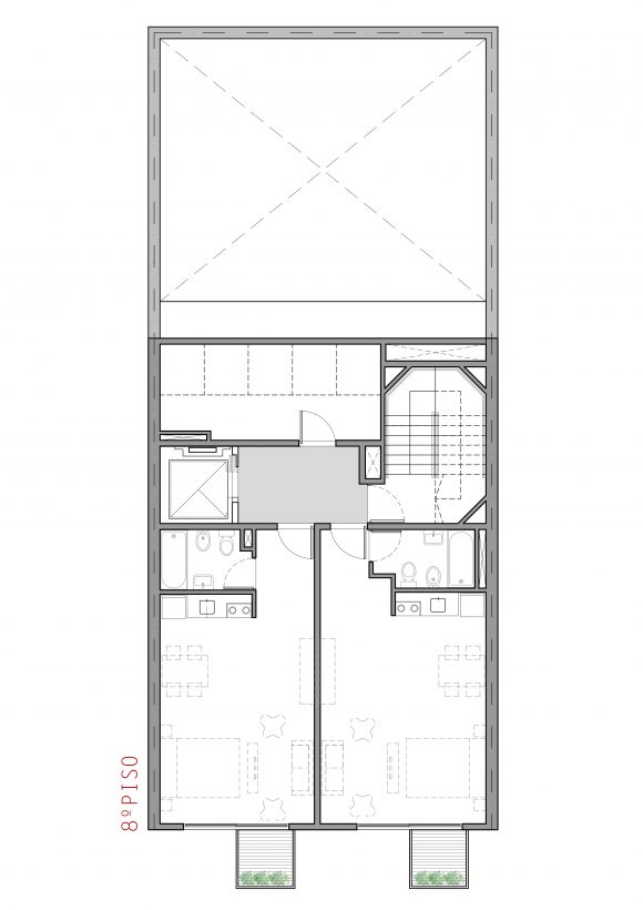
Tres Arroyos 2271 es un edificio en Propiedad Horizontal de PB y 9 pisos ubicado en el Barrio de Paternal en la Ciudad Autónoma de Buenos Aires. Se emplaza en un lote entre medianeras y esta organizado en un bloque, con unidades al frente y contrafrente, y un núcleo circulatorio central.

Cuenta con 25 unidades, tipo estudio, monoambientes y dos ambientes. En la planta baja abierta, se alojan los accesos, peatonal y vehicular, y en la última planta, las zonas comunes y de esparcimiento.

Este proyecto explora la noción de CAJAS VOLANDO. Esta cajas metálicas, que son las expansiones de los departamentos, se organizan a través de una grilla modulada sobre la cual estas, se van "moviendo" en todo el desarrollo de la fachada. Esta estructura genera una sensación de tridimensionalidad, juego de luces y sombras y permite que todas las expansiones tengan una vista abierta al entorno.

Esta cajas metálicas, que son las expansiones de los departamentos, se organizan a través de una grilla modulada sobre la cual estas, se van "moviendo" en todo el desarrollo de la fachada
Esta estructura genera una sensación de tridimensionalidad, juego de luces y sombras y permite que todas las expansiones tengan una vista abierta al entorno.
Tres Arroyos 2771 en proceso