Alvarez Thomas 803/801

Propiedad Horizontal

2013

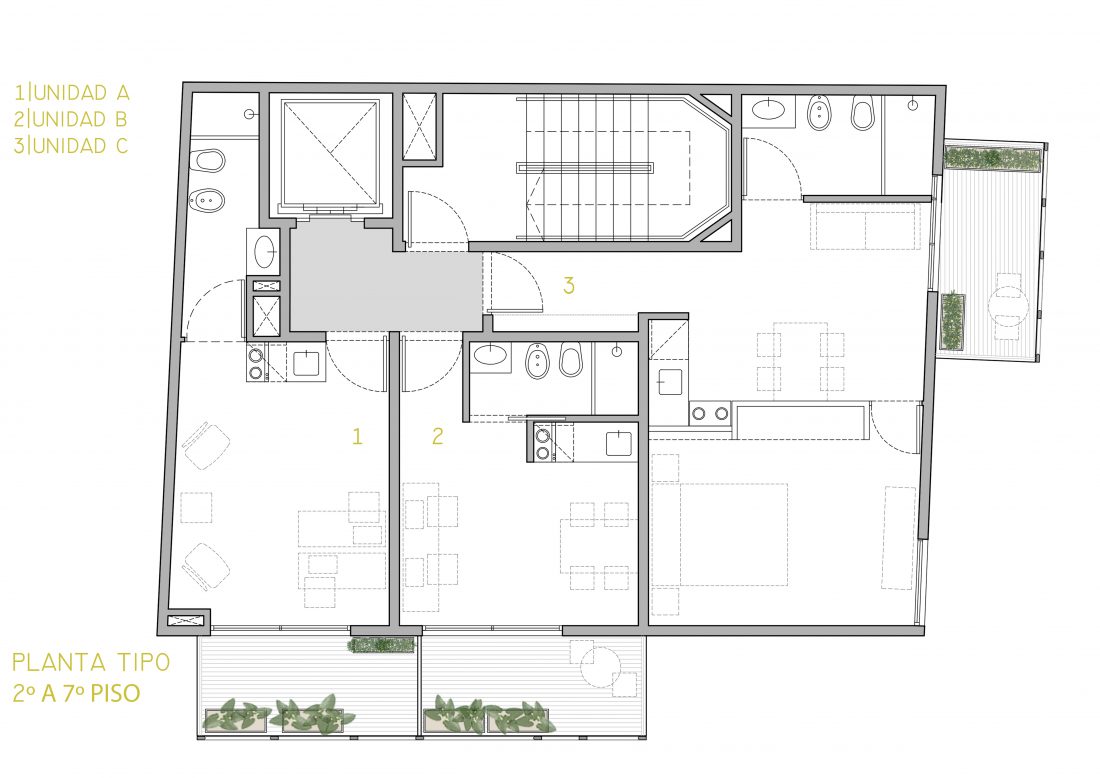
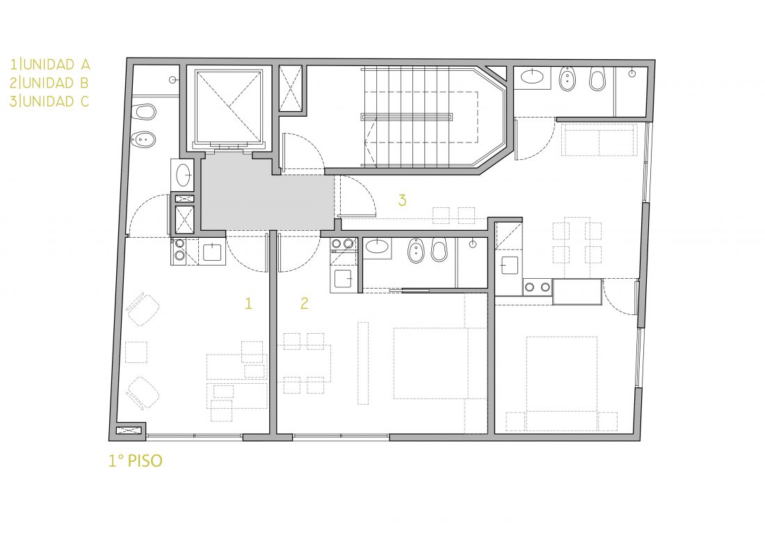
Alvarez Thomas 803/801 es un edificio en Propiedad Horizontal de PB y 9 pisos ubicado en el Barrio de Colegiales en la Ciudad Autónoma de Buenos Aires. Se emplaza en un lote en esquina y esta organizado en un bloque, con todas al unidades abiertas hacia la Av. Alvarez Thomas y la calle lateral, Palpa.

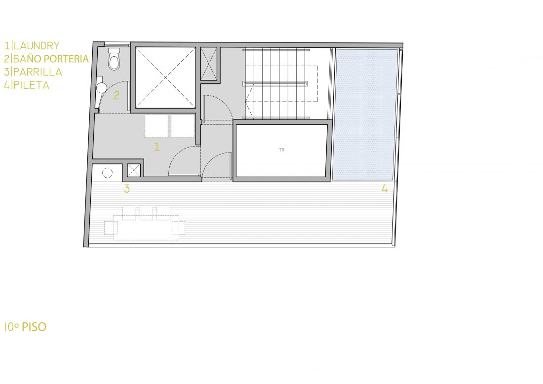
Cuenta con 25 unidades, tipo estudio, monoambientes y dos ambientes. En la Planta baja se aloja el hall de acceso y el sistema circulatorio, y tomando la esquina un local comercial.

Este proyecto explora la noción de SUPERPOSICIÓN DE TRAMAS, a través de un sistema alternado de perfiles galvanizados, que funcionan como parasoles y contenedor de las expansiones de las unidades.

Este proyecto trabaja sobre la noción de SUPERPOSICIÓN DE TRAMAS, a través de un sistema alternado de perfiles galvanizados, que funcionan como parasoles y contenedor de las expansiones de las unidades.
Alvarez Thomas 803 en proceso