Correa 3460

Propiedad Horizontal

2021

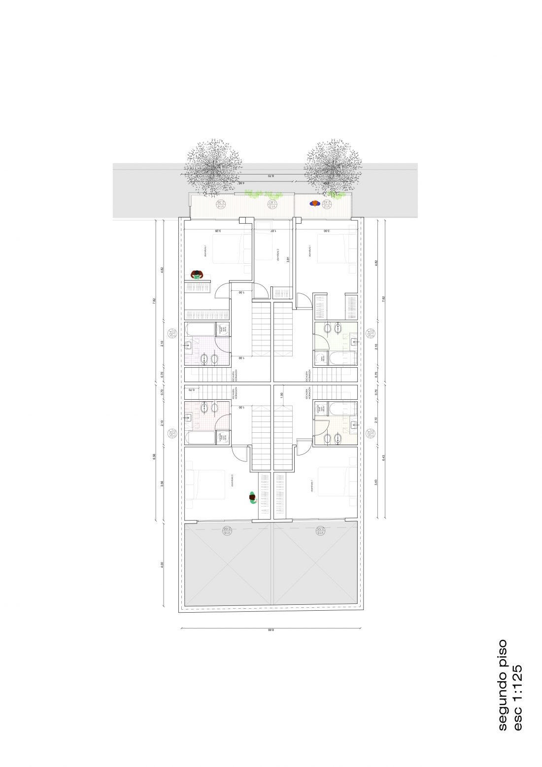
Correa 3460 es un edificio en propiedad horizontal de PB + 3 plantas, que se localiza en el barrio Saavedra en la Ciudad Autónoma de Buenos Aires. Se emplaza en un lote entre medianeras, y las unidades se disponen alrededor del sistema circulatorio que proporciona los ingresos a las unidades.

Cuenta con ocho unidades, cuatro en planta baja desarrolladas en tipologías tipo dúplex con doble altura, y jardines verdes propios. A partir del primer piso se desarrollan cuatro unidades en triplex, las cuales cuentan con diversos tipos de expansiones - balcones-terraza- y cómodas terrazas verdes en la última planta.

El edificio propone un juego volumétrico, entre las distintas unidades y los espacios verdes de transición y expansión. La piel -malla metálica- posee una triple potencialidad: primero, la de proporcionar una superficie que funciona como tamiz de la luz y de circulación del aire. Por otro lado, provee de privacidad a las unidades, y a los espacios de expansión. Finalmente, la piel crea una sutil composición, conjuntamente con el uso del hormigón y la abundante vegetación, dotando al edificio de una imagen singular que se vincula armoniosamente con el entorno.

Este proyecto explora la idea de CASAS EN ALTURA, como alternativa a los tradicionales edificios de Propiedad Horizontal. Esta mixtura de pequeñas “casas” con diversos espacios de expansión, vegetación van conformando cómodos refugios en medio de la ciudad

Correa 3460 es un edificio de propiedad horizontal ubicado en el barrio de Saavedra en la Ciudad Autónoma de Buenos Aires, a pocos minutos del Parque Saavedra, en una zona residencial y en crecimiento. Cuenta con planta baja y tres pisos y se emplaza en un lote entre medianeras. Está organizado en un solo bloque -frente y contrafrente- con un núcleo en el centro donde se encuentran las circulaciones horizontales y verticales y los núcleos de servicios.
Este proyecto se alinea bajo el concepto de Casas en Altura. Cuenta con ocho unidades de diferentes tamaños y características, todas con expansiones al exterior, terrazas y balcones.
La incorporación de la vegetación como remate, el uso de la luz y la simpleza en los detalles de diseño, le confieren al edificio un caracter particular enmarcado por una gran red metálica que abraza a éste en su totalidad.