Ramón Freire 3723

Propiedad Horizontal

2017

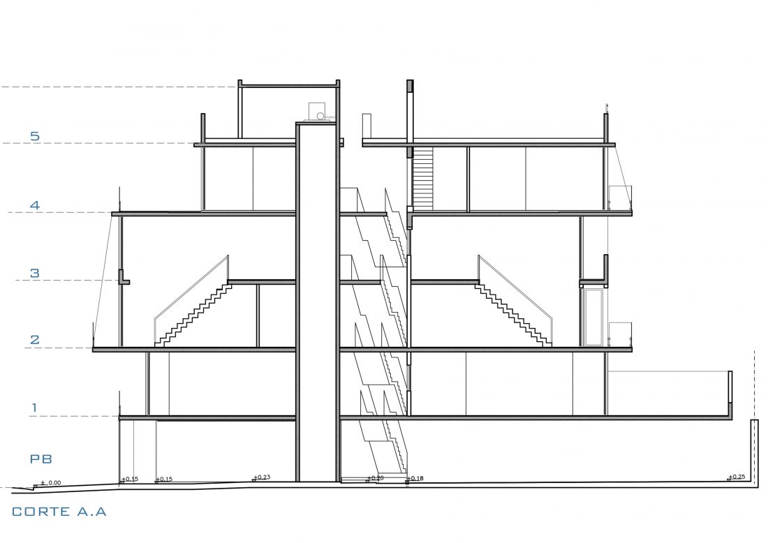
Freire 3723 es un edificio en Propiedad Horizontal de PB y 4 pisos ubicado en el Barrio de Saavedra en la Ciudad Autónoma de Buenos Aires. Se emplaza en un lote entre medianeras y esta organizado en dos bloques (frente-contrafrente) vinculados a través de un espacio común, donde se encuentran las circulaciones, horizontales y verticales a cielo abierto.

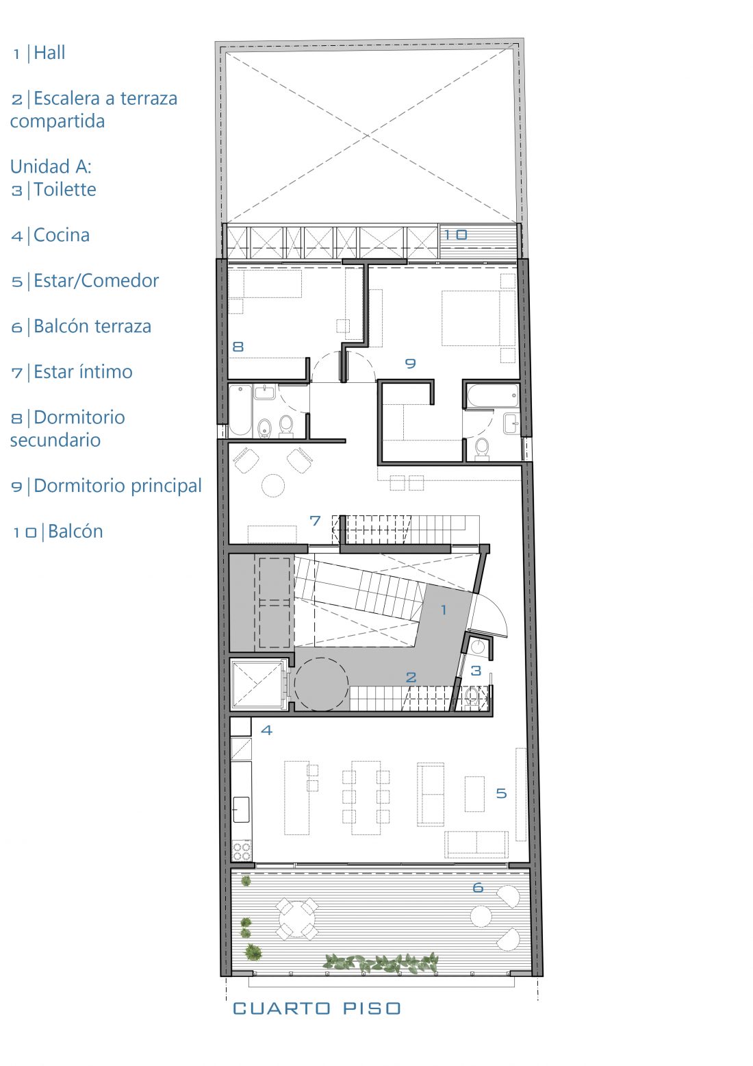
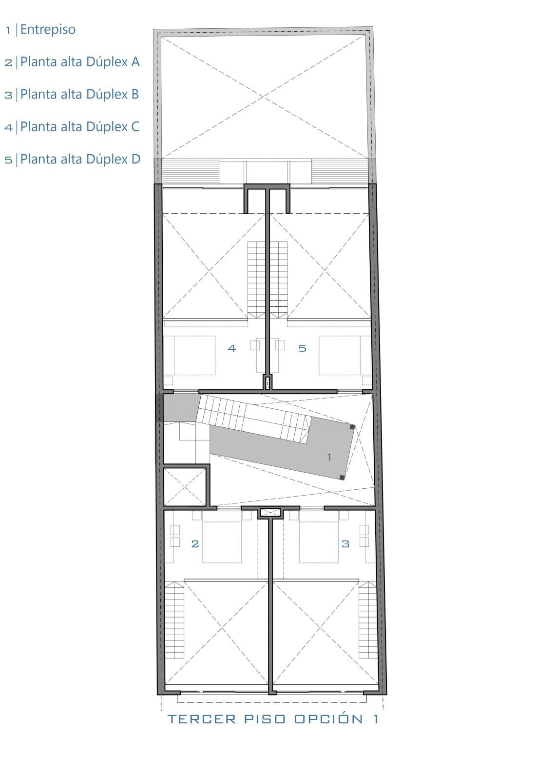
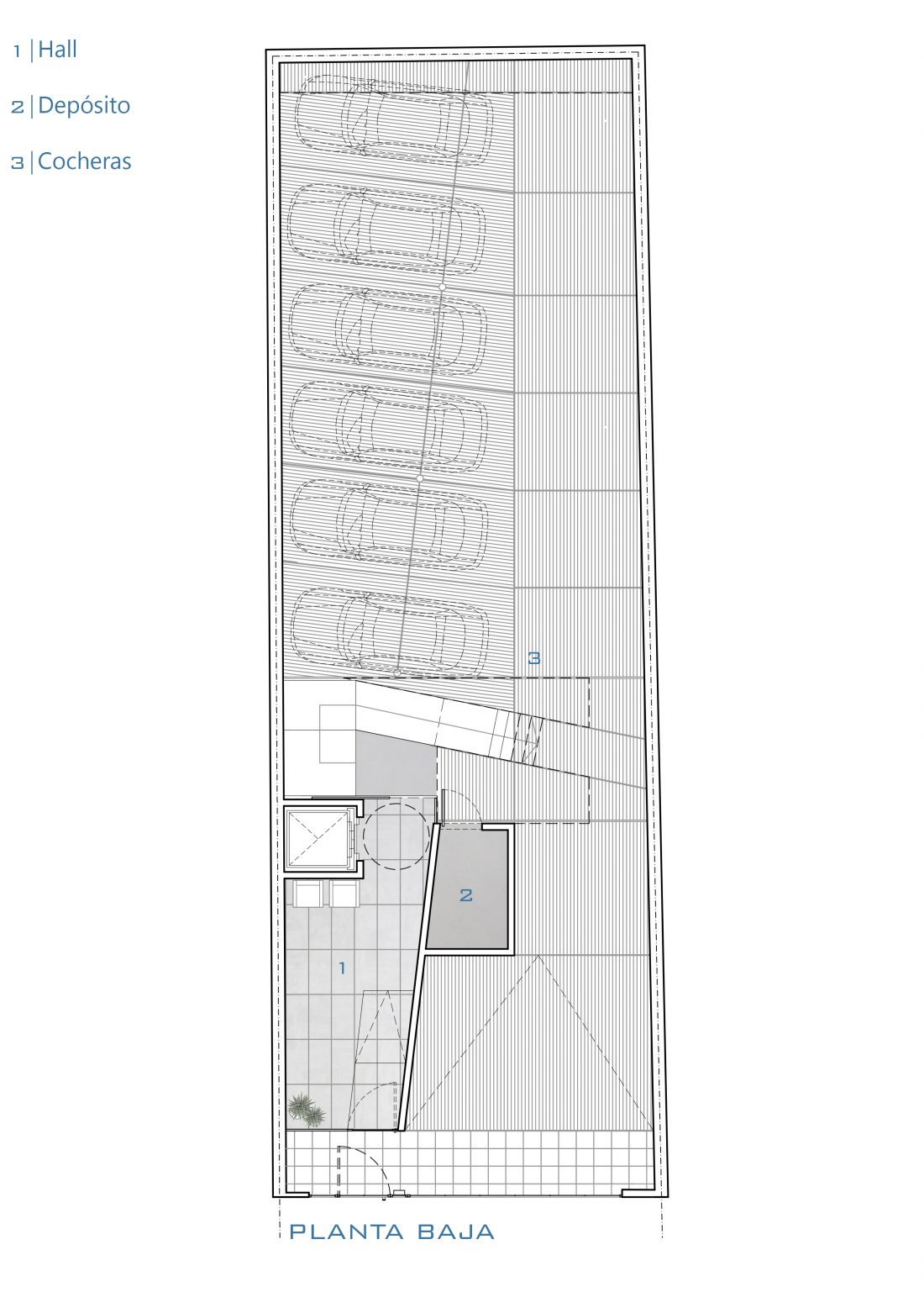
Cuenta con nueve unidades, de diferentes tamaños y características, todas con expansiones al exterior. En planta baja se alojan los accesos, peatonal y vehicular, y en la última planta, las zonas comunes y de esparcimiento.

Este proyecto se alinea bajo el concepto de CASAS EN ALTURA, que a través del espacio a cielo abierto, donde se ubican los accesos a los departamentos, la incorporación de la vegetación, el uso de la luz y los sistemas de expansiones confieren al edificio un carácter particular.

Vistas del espacio de circulaciones y accesos a departamentos, a cielo abierto
Este proyecto se alinea bajo el concepto de CASAS EN ALTURA, que a través del espacio a cielo abierto, donde se ubican los accesos a los departamentos, la incorporación de la vegetación, el uso de la luz y los sistemas de expansiones confieren al edificio un carácter particular.
CASAS EN ALTURA
Zonas de acceso
Freire 3723 en proceso